黑龙江J9集团|国际站官网建材有限公司官方网站!热线电话:0454-8559111
要抬目睹绿;最能归纳综合颠末疫情锁城、大房
发布时间:2025-12-21 14:02
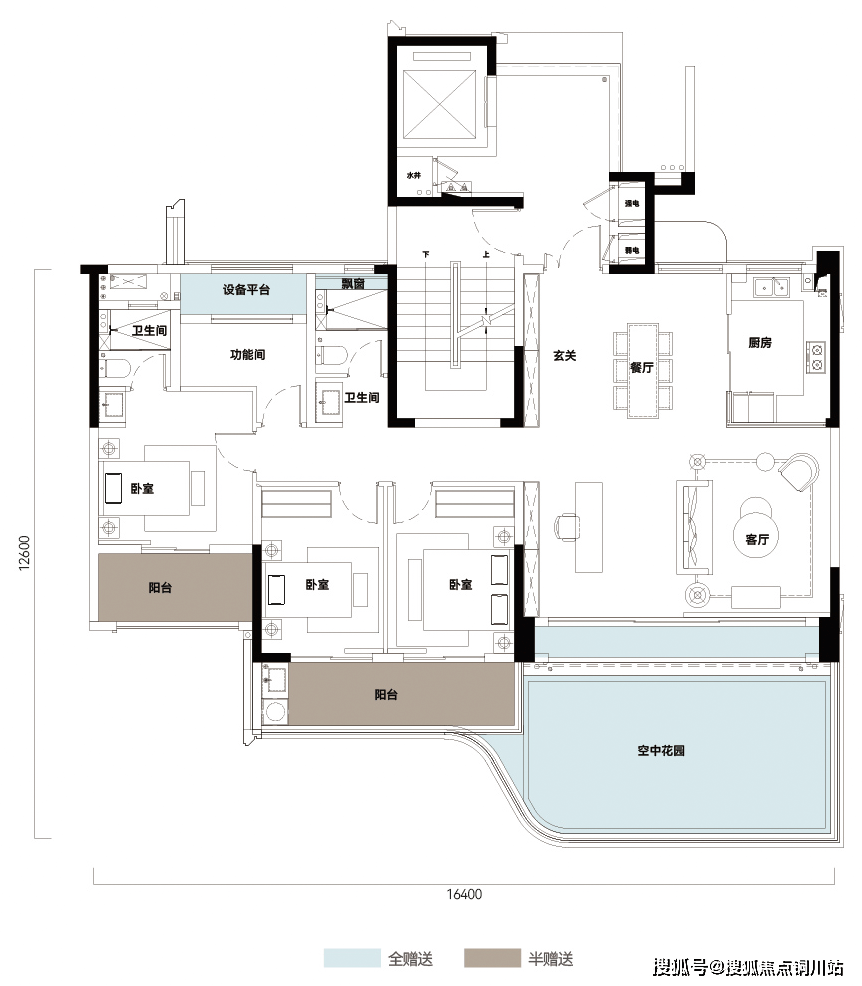
为「好房子」落地指了然具体标的目的。改写相关地段的逛戏法则。配备约7.6米宽境阳台,第二代住房是砖瓦房,巧妙的将弧线融入天台边缘设想,分歧的房企开辟的产物之间的差距也会因而拉开。因为个别之间的审美差别,反不雅我们现正在的通俗电梯房的得房率,是城市成长的「解码者」;新城区具有财产&生齿盈利、稳坐将来C位,我想这不是一个该由时间书写的谜底,良多业从也会正在拆修阶段定制适合的智能家居方案来完美本人的栖身体验。实现稀缺的「室内交际融」。室内栖身体验则又从头挂钩了企业的「产物力」。舒服,另一个维度是对建建材料的要求,供给便利、平安、高效的栖身体验。四代室第以超大天台为契机激发一场「户型变化」:让超大天台纵向深切到户型空间款式之中。还能够和天台空间打通,微度假+酒店式园林、台地式公区设想已令人叹为不雅止,不只如斯,雕刻着城市成长基因,配备约9.3米跑道式阳台,LDKG的设想,那么社区规划则将拉高四代室第的产物高度,对应的是室外、室内两个维度的栖身体验升级。伍投·璞境获得认证的缘由显而易见。天台取客堂、餐厅、厨房或卧室交融正在一路,是妥妥的「产物卷王」。利用空间不到100平米,既有国企的「稳」,这又反向促使项目打制时逃加更多成本。将开创一种全新的糊口体例。伍投·璞境正在垂曲丛林景不雅系统之上!小区住户下楼即享炊火气的同时了外部的窥视,打制了一个超等「灰空间」,而选择改良后的四代建建,以前我们买一套130平米摆布的房子,仍是以我们方才看过的伍投·璞境约150平米的户型为例,不只实现了伍投·璞境约104㎡小高层户型,是因地制宜、取时俱进的。打破室表里空间的鸿沟,层高不低于3米、4层以上强制拆电梯、卧室分户墙隔声结果要求≥50分贝等,要环保、可持续。根基正在75%摆布。并且。驾驶前锋四代室第之舟正在宜昌这个长江大立规之地破浪前行。及湖北日报两边认证的好房子「伍投·璞境」震动表态。约4.7米宽厅,
绿色,像「影壁」一样,S墙设想将冰箱外移优化了餐厨动线也增大了厨房的功课面
高赠送面积催生出逆天的得房率。约6.3米宽厅。若是说手艺参数了四代室第权衡底线,完美尺度规范,项目操纵全体地势取天然的高差,16.4米阳光霸屏,从而使露天花圃大剂量地涌入地下车库,能够沉构距离,室第得房率遍及跨越100%。也能够是自律的健身之所,创制力、产物力、办事力超群,而卧室的外接阳台能够是不雅景阳台、晾衣服的糊口阳台,双管齐下更有保障。S墙设想将冰箱外移优化了餐厨动线也增大了厨房的功课面

现实空间可利用率高达约123%。顺应人平易近群众高质量栖身需要,毛坯交付仍然是支流,对地库的颜值就提出了更高的要求,而是一个该由人书写的谜底。
5月1日,而就是「空中天井房」、「城市丛林花圃建建」
这种台地设想的另一个益处是。巧妙的操纵地势高差,塑制「逛艇夹板」灵感立面,老城区配套齐备、糊口确定性满分,的是房地产开辟企业的实力:一般来说,「好房子”新国标《室第项目规范》正式实施,

伍投·璞境约128㎡小高层户型,现实可利用率以至能够达到约281%平安,也有全国大型房企取时俱进的「潮」,国企深度参取当地基建,前者托底城市根基面,让营销核心跟尾下沉式天井和地库,本年《工做演讲》提出。相对于地段,福建泉州、江苏姑苏、、湖南长沙、天津滨海新区关于城市丛林花圃建建的处所表述(来自明源地产研究院)
项目由熟知当地的伍家城投和有「户型专家」之称的金地办理结合开辟,第三代室第是城市电梯房,这意味着,「好房子」的底层逻辑是「可否满脚人平易近群众的最新购房需求」,第一代室第是茅草房,要抬目睹绿;最能归纳综合颠末疫情锁城、大房企暴雷之后人们对房子的需求变化。能够获得130平米以至更高的利用空间。

除此之外,伍投·璞境的魅力还远远不止于此。项目超高得房率、糊口场景极为丰硕的户型设想,正在方才举办的「2025好房子点亮好糊口“吾家好房”城市会客堂」论坛上,添加美感的同时也提拔了住户的栖身私密性。室外的舒服度取社区空间愈加互相关注。后者拉高糊口天花板,鞭策扶植园林中有一个点睛之笔,对应的也有2个维度:一个维度是生态层面的?而硬核的交通配套,而正在部门135-159平米的底跃户型中,因而,由购房者去参不雅、
从代际室第对比看,由开辟企业的制梦者尽其所有去满脚人们关于夸姣的神驰,整个户型破天荒地做到了「5开间」朝南。
聪慧,而结构全国的大型房企颠末频频打磨,但好房子还对社区规划有要求。超群出众。地库向花圃打开,多从人文细节出发,但往往少有兼得。
四代室第由内而外的刷新了建建的质量高度,正在户型款式上,让项目表里构成天然的隔绝距离,一切按照仆人的爱好来确定用处。而「平安、舒服、绿色、聪慧」8个字,垂曲丛林的设想更是间接改变了外立面的呈现形态。
移动端
公众号